
This project is an extensive whole-house remodel of a modest Minneapolis home on Girard Avenue South. The existing structure — while full of potential — suffered from an inefficient layout, code deficiencies, and limited space. The vision for The New Modern is to transform it into an extraordinarily resilient, functional, and beautiful home.
Two additions will expand the footprint: a sun room addition on the main level and a new primary bedroom suite above. The entire exterior will be re-clad in natural slate, creating a modern aesthetic of remarkable durability. Inside, every material choice prioritizes health, sustainability, and the work of local craftspeople.

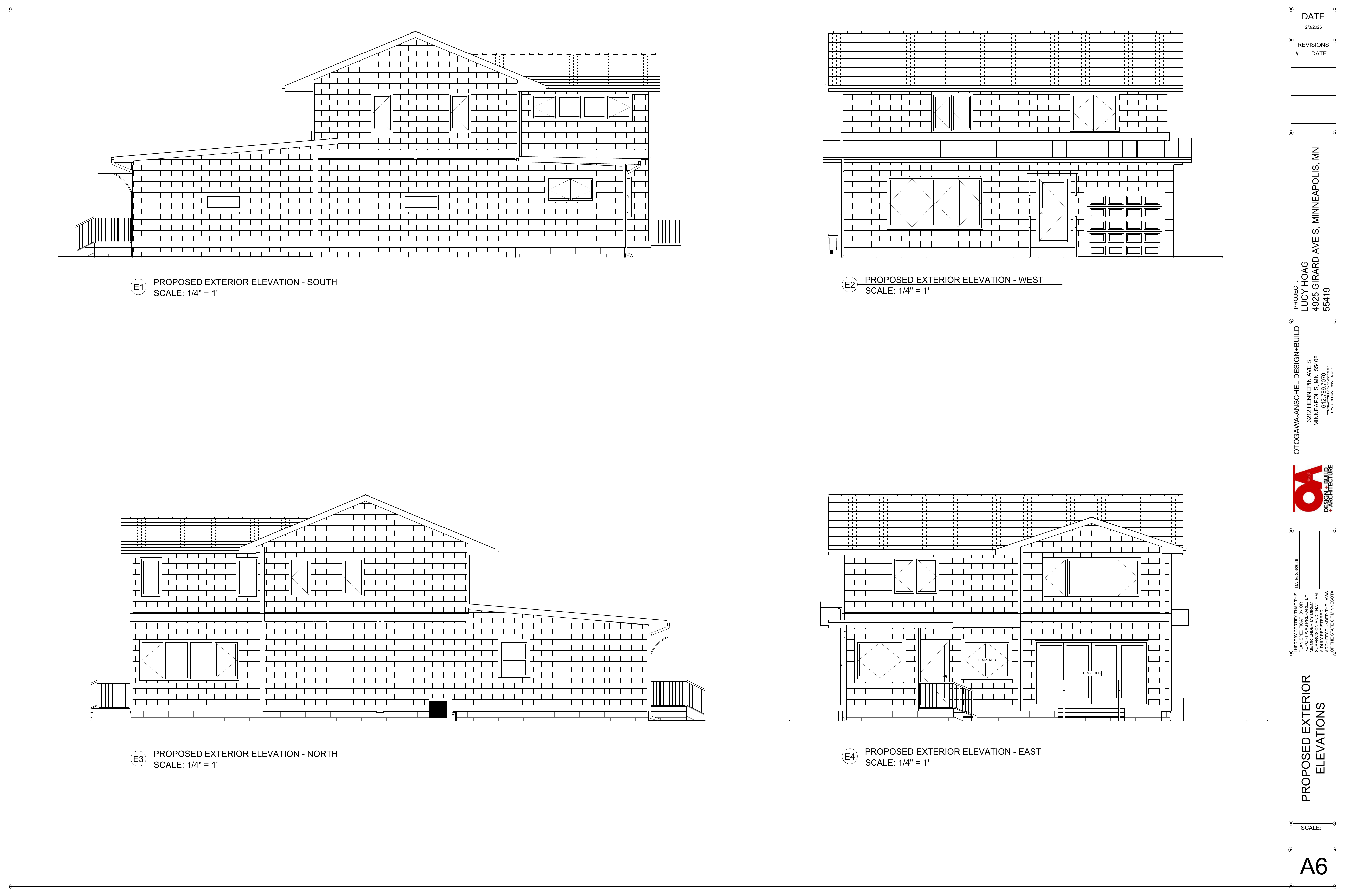
All four elevations showing proposed natural slate shingle cladding
Comprehensive building envelope upgrades and modern mechanical systems will dramatically reduce energy consumption and improve year-round comfort.
The entire exterior will be re-clad in natural slate — a material of extraordinary durability and timeless beauty that will last for generations.
Interior finishes are selected for minimal off-gassing and maximum indoor air quality, creating a home that is as healthy as it is beautiful.
Every element of this project is built by skilled local craftspeople who take pride in their work and their community.

The design language of The New Modern is rooted in the beauty of natural materials. Natural slate on the exterior provides unmatched durability and a quietly dramatic presence. Inside, white oak floors and millwork bring warmth and grain, while creamy quartzite surfaces add elegance without excess.
Every material was selected not only for its beauty but for its longevity, low environmental impact, and contribution to a healthy indoor environment. Clean lines and simple forms ensure the home feels modern without feeling cold or sterile.
Construction projects of this scope inevitably create some temporary disruption. We are committed to being good neighbors throughout this process — maintaining a clean and organized job site, respecting working hours, and communicating openly about the project's progress. If you have questions or concerns, please don't hesitate to reach out.